

Strategic Industrial Development, Redefined
Interstate Capital is a Vertically Integrated Private Equity Real Estate firm specializing in the Acquisition, Entitlement, and Development of Industrial Land across Mid-Sized Industrial Cities in the Midwest. We identify Underutilized Infrastructure Rich Sites in Overlooked Markets and Rapidly Transform them into Shovel-Ready Industrial assets designed for Warehousing, Manufacturing, Cold storage, and Data Centers.
Our approach is Bold, Data-Driven, and Execution-Focused. Backed by proprietary site selection tools and an in-house team that manages every phase from zoning to vertical construction, we deliver Institutional-Quality Outcomes with Unmatched Speed and Certainty.
Vertically Integrated
Execution
Four Dedicated Service Companies—Entitlement, Construction, Development, and Brokerage—Working in Lockstep to Streamline Timelines and Reduce Third-Party Risk.
Strategically Positioned
Properties
Focused Inventory in Overlooked Secondary and Tertiary Markets, we Deliver High-Quality Industrial Spaces at Significantly Reduced Costs compared to Traditional Urban Sites.
Decades of Driven
Expertise
Our Integrated Platform covers everything from Site Acquisition and Entitlements to Construction and Leasing, Ensuring Seamless Execution and Maximized Stakeholder Value.
Real Impact, Real
Returns
We don’t just Develop Land—we Create Jobs, Grow Tax Bases, and Revitalize Forgotten Cities, while Consistently Delivering Superior, Risk-Adjusted Returns.
PORTFOLIO METRICS
Stabilized AUM: $140.5
Pipeline Phases: 43
Stabilized SF: 1,120,000 SF
Pipeline SF: 14,774,100 SF
Stabilized Acres: 243 ac
Pipeline Acres: 2,025 ac
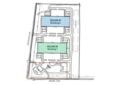
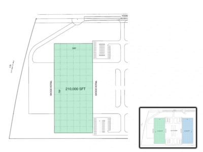
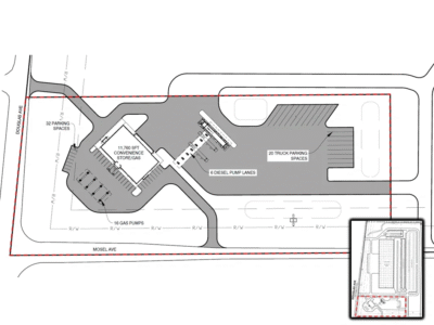
Featured Properties
Invest With Us
At Interstate Capital, we don’t just develop industrial land—we engineer opportunity. We offer investors access to high-growth real estate markets that are often overlooked by traditional funds but primed for extraordinary returns – consistently delivering high-performing industrial assets ahead of the market curve.
News, Info & Updates
Experience the Interstate Capital Difference
Our strategic approach to industrial real estate investment is intentional, data-driven, and thoroughly integrated, delivering extraordinary results for our investors, tenants, and communities.
