Kalamazoo Township Commerce Park
Site Features
Location: 3006 Douglas Avenue, Kalamazoo Twp, MI 49004
Metro Area: Kalamazoo, Michigan
Total Site Acres: 57 Acres
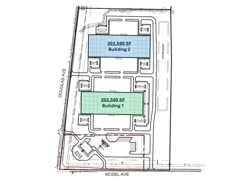
Park Size: 405,000 SF
# of Buildings: 2 Total
Property Type: Light Industrial / Commercial
Immediate Access to Freeway | All Utilities On-Site | 10 Minutes to International Airport | 1 Mile from Largest Paper Mill in North America | Perfect for Paper Converter to be Near Material Source | 40 Minutes to Ford Blue Oval in Marshall.
About the Development
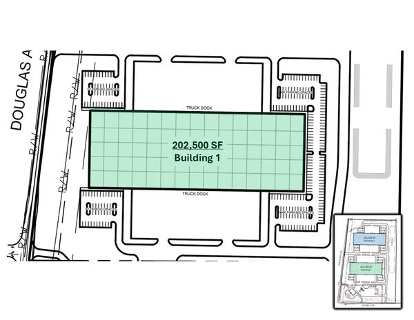
Building 1 – 202,500 SF – Cross Dock
- Building Dimensions: 750 ft X 270 ft
- Ceiling Height: 32 ft Clear Height
- Exterior Walls: Reinforced Concrete Panels / Textured Painted Finish
- Property Type: Warehouse / Distribution / Light Manufacturing
- Slab Construction: 6” Reinforced Concrete
- Column Spacing: 50 ft X 50 ft with 60 ft Speed Bays at Docks
- # of Docks: 36 Delivery | 36 Expansion Docks
- # of O.H. Doors: 4 Total
- # of Employee Parking: 127 at Delivery | 127 Expansion Spaces
- Fire Suppression: ESFR
- Electrical: 4,000 Amps 480V – 3 Phase
- Lighting: LED – 30 FC with Motion Sensors
Building 2 – 202,500 SF – Cross Dock
- Building Dimensions: 750 ft X 270 ft
- Ceiling Height: 32 Foot Clear Height
- Exterior Walls: Reinforced Concrete Panels / Textured Painted Finish
- Property Type: Warehouse / Distribution / Light Manufacturing
- Slab Construction: 6” Reinforced Concrete
- Column Spacing: 50 ft X 50 ft with 60 ft Speed Bays at Docks
- # of Docks: 36 at Delivered Docks | 36 Expansion Docks
- # of O.H. Doors: 4 Total
- # of Employee Parking: 76 Delivered Spaces | 71 Expansion Spaces
- Fire Suppression: ESFR
- Electrical: 4,000 Amps 480V – 3 Phase
- Lighting: LED – 30 FC with Motion Sensors
Last Mile Facility – 300,000 SF – Delivery Van Facility
- Building Dimensions: 1,000 ft X 300 ft
- Ceiling Height: 36 Foot Clear Height
- Exterior Walls: Reinforced Concrete Panels / Textured Painted Finish
- Property Type: Warehouse / Distribution / Light Manufacturing
- Slab Construction: 6” Reinforced Concrete
- Column Spacing: 50 ft X 50 ft with 60 ft Speed Bays at Docks
- # of Docks: 42 Docks
- # of Trailer: 23 Trailer Parking Spaces
- # of O.H. Doors: 50 Doors
- # of Employee Parking: 370 Spaces
- Fire Suppression: ESFR
- Electrical: 8,000 Amps 480V – 3 Phase
- Lighting: LED – 30 FC with Motion Sensors
Property For Sale
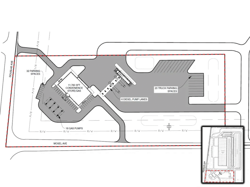
FOR SALE – Fueling Pad
- Site Acres: 9.91 Acres
- Convenient Store:11,760 SF
- Vehicle Pumps: 16
- Parking Spaces: 32 Total
- Diesel Pumps: 6 Total
- Truck Parking Spaces: 20 Total
- Expandable Truck Parking Available Upon Request
