Grayling Commerce Park
Site Features
Location: 4623 Young Rd, Grayling, MI
Metro Area: Grayling, Michigan
Total Site Acres: 33 Acres
Park Size: 420,000 SF
# of Buildings: 2 Total
Property Type: Heavy & Light Industrial / Warehousing / Distribution
Immediate Access to Freeway | All Utilities on-Site | 10 Minutes to International Airport | Rail Service Available | 4 Miles to Arauco (Largest Particle Board Manufacture in North America) | Perfect Furniture Manufacturing Space
About the Development
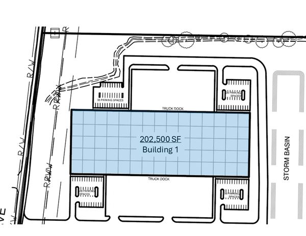
Building 1 – 210,000 SF – Cross Dock
- Building Dimensions: 700 ft X 300 ft
- Ceiling Height: 32 ft Clear Height
- Exterior Walls: Reinforced Concrete Panels / Textured Painted Finish
- Property Type: Warehouse / Distribution / Heavy & Light Manufacturing
- Slab Construction: 6” Reinforced Concrete
- Column Spacing: 50 ft X 50 ft with 60 ft Speed Bays at Docks
- # of Docks: 22 Delivery | 22 Expansion Docks
- # of O.H. Doors: 4 Total
- # of Employee Parking: 50 at Delivery | 50 Expansion Spaces
- Fire Suppression: ESFR
- Electrical: 4,000 Amps 480V – 3 Phase
- Lighting: LED – 30 FC with Motion Sensors
Building 2 – 210,000 SF – Front Load
- Building Dimensions: 700 ft X 300 ft
- Ceiling Height: 32 ft Clear Height
- Exterior Walls: Reinforced Concrete Panels / Textured Painted Finish
- Property Type: Warehouse / Distribution / Heavy & Light Manufacturing
- Slab Construction: 6” Reinforced Concrete
- Column Spacing: 50 ft X 50 ft with 60 ft Speed Bays at Docks
- # of Docks: 14 Delivery | 8 Expansion Docks
- # of O.H. Doors: 2 Total
- # of Employee Parking: 50 at Delivery | 50 Expansion Spaces
- Fire Suppression: ESFR
- Electrical: 4,000 Amps 480V – 3 Phase
- Lighting: LED – 30 FC with Motion Sensors
